【摘要】缝隙是玻璃幕墙渗漏的主要通道,而缝隙是由相同材料之间和异质材料之间的拼接和连接所形成的,只有认真分析造成渗漏的各种原因,才能做好防水节点的设计。对缝隙作防水处理,空间非常有限,也就意味着缝隙防水构造形式的设计要求和难度很高。玻璃幕墙的铝型材断面设计和合理的节点设计都是保证防水性能的重要因素。
引言
随着我国玻璃幕墙的大规模发展,人们不仅要求玻璃幕墙能够采光通风和遮风挡雨,对玻璃幕墙的外观和视野也提出了更高的要求。各种形状独特的玻璃幕墙已成为现代建筑的重要组成部分,得到越来越广泛的应用。幕墙在建筑行业中可谓后起之秀,依靠现代机械加工技术,幕墙以其高精度、高集成化、高工厂化,在现代建筑特别高端建筑中占据了越来越重要的地位。幕墙的核心技术性能包括气密性、水密性、抗风压变形性。本文就水密性的设计理论做以整理探讨。

1 单元式玻璃幕墙的防水设计
单元式幕墙在工厂已将单元组件制作完成,靠相邻两单元组件相邻框对插组成组合杆完成接缝,这样在上、下、左、右四个单元连接点上必然有一个四个单元组件对插件均不能到达的地方,此处必然有一个内外贯穿的"十"字洞,该"十"字洞是单元式幕墙防水的薄弱环节。单元式幕墙对插接缝部位的防水构造设计按照雨幕原理进行,该原理通过3 道密封线形成等压腔来确保单元的气密性和水密性。在横(竖)向接缝的外侧设置雨披(第1 道防尘、批水密封线),仅在两单元组件连接处留一个小开口,使等压腔与室外空气流通,维持压力平衡,形成一个自上而下、自左到右连续的外壁(雨幕),阻止大量雨水渗入幕墙内部。在阴阳竖料(上下横料)中段设计一个横向(竖向)的对插防水空腔(第2 道防水密封线),少量进入等压腔的水将被有组织地排出,不会继续进入室内。在阳竖料(上横料)内侧设计一个横向(竖向)的密封胶条(第3 道气密封线),由于防水密封线和气密封线之间的等压腔和室外基本上是相通的,防水密封线不能阻止空气的渗透,阻止空气渗透的任务由最后一道气密封线来完成。

△雨屏和几个等压墙体构造的基本形式
2 雨幕原理
雨幕原理假定墙体外表面为一层"幕",研究如何阻止雨水或雪融水透过这层幕的机理。它的研究范围包括:缝隙或孔洞影响、重力作用、毛细作用、表面张力的影响、风运动能的影响、压力差的作用等。据此开发出合理的解决方案,达到成功阻止水渗漏的目的。

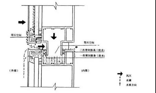
△幕墙等压原理图
3 等压原理
等压原理的核心思想是"雨幕"两侧的压力达到平衡,消除渗漏三要素中的"作用",尤其是风压的作用。实际应用中,真正达到等压并非易事,如自然界中风速是随机的,造成的波动风压很难使"雨幕"两侧时时等压。
这两种理论有联系又有区别,实际工程中常结合使用。依据三大要素和两种理论,建筑幕墙的防水设计先后经历了三个阶段:完全密封(Front Sealed)、收集储存(Mass or Storage)和结构化防水(雨幕原理和等压原理)。完全密封和结构化防水分别较明显的对应于框架幕墙(又称构件幕墙)和单元幕墙。由于幕墙技术传入我国时在国外已发展了相当长时间,收集储存这种设计方式其时已被摒弃,故而在我国幕墙工程中几乎没有应用。

(1)框架幕墙(Stick Built System)+完全密封框架幕墙由于其成本低廉和技术门槛低,目前在我国应用广泛。其防水思想也相对简单直接,几乎只针对渗漏三要素中的第一点---缝隙。因此许多低端幕墙在施工中只奉行两个字---"打胶"。通过调整胶缝宽度和深度、发泡棒的位置、施胶界面的清洁等手段,来确保密封胶能够有效的消除所有外露缝隙。
受此思路影响,个别幕墙施工单位甚至忽视了幕墙变形性能和竖框收集排水的设计,使得完全密封方式原本就存在的耐久性差的缺点更加明显和严重,在一段时间内影响了幕墙这一新兴舶来品在业主心中的印象,阻碍了幕墙在我国建筑市场的发展。正确的框架幕墙节点,应做到有效的集水及排水,在竖框中设置导排装置,根据不同形式的竖框规格,随型材截面设计相应的集水槽,使整个系统形成上下等压腔;选取合理的间隔距离,设置排水孔,将通过竖框收集的渗水排出室外。

(2)单元幕墙(Unitized System)+结构化防水单元式幕墙系统是目前国际上应用比较广泛的一种幕墙结构系统,单元板块可以全部在工厂车间内进行组装完成,组装精度高,安装速度快,施工周期短;可以与土建主体结构同步施工,缩短建筑施工周期;结构化防水,逐级减压原理,防雨水渗漏和空气渗透性能良好;板块接缝处全部采用EPDM 胶条搭接密封;板块之间为柔性连接,抗震能力强、变形性能好。单元式幕墙的设计原理是通过单元幕墙的插接构造及挡水胶条的设置,构成幕墙的尘密线、水密线和气密线(依工程要求不同,可能增加或减少密封线),使板块的插接部位形成多个与室外大气环境相通的等压腔(不少于两个等压腔),从而使进入等压腔内的少量雨水可以靠重力顺利排出室外,保证幕墙靠近室内侧的气密线部位没有水的存在,实现幕墙优良的水密性能。
挡水胶条是结构化防水的重点,在正常状态下应具有一定的压缩量,从而保证单元板块在温度等外力作用下发生位移和变形时,挡水胶条仍具有一定密封能力。单元幕墙应合理设计密封胶条,保证在整个系统中无密封间断点存在,尤其在上下左右相邻的四个单元板块形成的"+"字的交点处。上横框顶设置披水胶条是一种常见的技术处理方式,水平贯通的披水胶条将上下层单元分隔为两个防水区域,一方面避免了排水压力的层层累积和过高竖腔造成的"烟囱效应",另一方面装"+"字节点转化为两个"丁"字节点,简化了水流分析。
结构化防水是幕墙防水技术走向成熟的标志,通过综合运用雨幕原理和等压原理,从幕墙节点结构设计入手,"允许水通过幕墙表面渗入,并能将水合理组织排出",相对于完全密封的被动防水技术,结构化防水是幕墙防水技术的主动阶段。
结语
缝隙是玻璃幕墙渗漏的主要通道,而缝隙是由相同材料之间和异质材料之间的拼接和连接所形成的,只有认真分析造成渗漏的各种原因,才能做好防水节点的设计。对缝隙作防水处理,空间非常有限,也就意味着缝隙防水构造形式的设计要求和难度很高。玻璃幕墙的铝型材断面设计和合理的节点设计都是保证防水性能的重要因素。除本文所叙的几种设计思路外,最关键的还是在设计过程中提高设计人员的技术水平,认真分析造成渗漏的原因,并采取针对性的防水设计方案,只有这样,才可能解决幕墙渗漏问题。